“去客廳化”有多爽?她家憑借異形窗+開放浴缸圈粉無數
來源:愛空間科技(北京)有限公司 日期:2022-10-26 14:07:06
- 詳細介紹
歲月安然,不慌不忙,不緊不慢,才明白人間煙火氣,最撫凡人心,幸福就是把平淡的日子過得舒心。
屋主@婭和男友因為工作性質的關系,喜歡無拘無束的生活,想要自己的新家無所謂風格定位,是一個能讓他們徹底放松、放下負擔的空間。購入的這套95㎡小兩室,戶型不太好,于是大刀闊斧地改造一番,把它變成自己喜歡的模樣。
房子最大的硬傷,在于功能區布局凌亂,內室有很多隔墻,通透性和互動性不好,于是我們根據屋主倆人的需求,兩房改一室,把除衛生間和臥室外的公共區域都打開,形成開放相通的洄游動線,削弱了異型空間帶來的不適感;整體采用純白+原木色為主基調,營造出簡約自然的家居氛圍,局部加入灰黑色進行裝飾,利用光影、色彩、質感家具共同塑造出空間的整體氛圍,以此為屋主打造出一個靈動隨性又極具自然舒適的家~
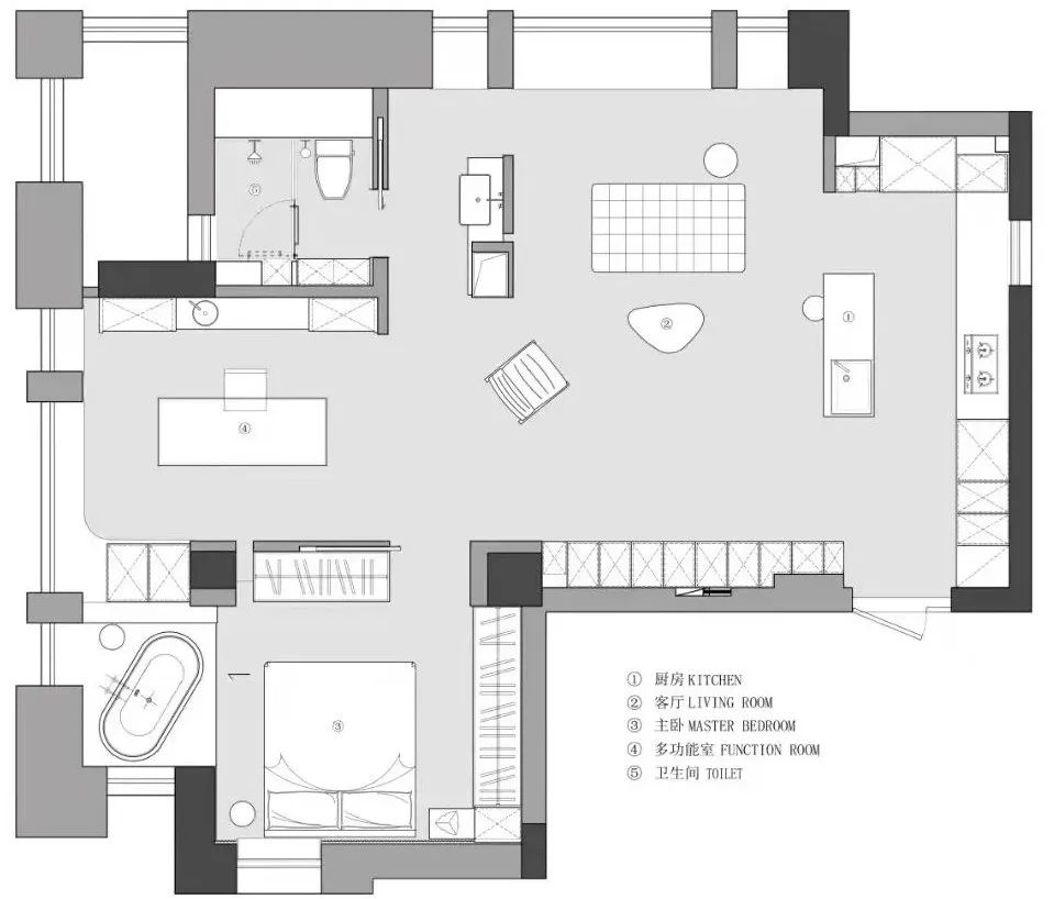
原始戶型圖
戶型分析:
1.戶型布局凌亂,不利于家居的擺放,容易造成浪費,同時還會加重人的不平衡感,造成不良的居住體驗;
2.內室隔墻多,功能區劃分不合理,通透性欠佳;
3.動線繁雜,讓人覺得壓抑。
平面布局圖
布局調整:
1.采用“化有形為無形”的方式,拆除內室多余隔墻,將畸形功能區進行融合處理;
2.把廚房打開,實現客餐廚連通一體,互動性更好;
3.保留主臥,旁邊的小房間規劃成開放式書房,與公區完美銜接在一起;
4.陽臺納入臥室,設計成@婭最喜歡的泡浴區,頗有情調;
5.衛生間干濕分離,盥洗區移到門外單獨使用,提高生活效率。
房屋信息:
面積:95㎡
戶型:兩室兩廳一衛
常住人口:2人
風格:極簡
裝修成本:23萬
客 廳
客廳與餐廳相通,采光很好,全屋燈無主燈設計,通鋪木地板無踢腳線,使得空間簡單通透,米灰色沙發沒有靠墻擺放,形成和諧流暢的洄游動線,隨性而休閑。
墻面使用灰色的質感藝術涂料,淡雅又從容。
摒棄大體量家具,搭配一張復古輕奢的鐵藝小圓幾,頗有幾分“貴氣”,還可以根據需要自由移動位置,精美實用。
臨窗規劃了一個小小的讀書角,擺放一把黑木靠椅,旁邊配置白色鐵藝書架,屋主把常看的書籍分類羅列在上面,方便拿取閱讀。
飄窗上部輪廓設計成弧形,柔和的線條打破了空間的生硬刻板,圓潤舒服。
飄窗正對小區花園,景致非常好,閑暇時候,@婭喜歡倚靠在這里,看書賞景,休閑又隨性。
拆除客廳與衛生間之間的墻體,并重新做了局部隔斷,兩側連通互動性更好,硬朗與圓滑的造型相互碰撞,盡顯簡約利索的線性美感。
電視背景打滿白色墻柜,多開門設計方便分類收納各種物品,邊緣處預留開放格,方便擺放一些小飾品,增加趣味性,沒有配設傳統的電視機,安裝了投影幕布代替使用,可以靈活收放,滿足觀影需求。
餐 廚 區
廚房打開后,餐廚區與客廳連通一體,生活動線更加流暢和諧。
門廳與餐廚區銜接,靠墻定制了一組吊空的雙開門鏡柜,旁邊是換鞋凳,空間雖小,基本功能還是比較齊全的。
與客廳不同,廚房地面鋪設灰色方磚,經典耐看,櫥柜和島臺采用高級灰+原木色調,與整體家居布設保持一致。
臥 室
木地板延伸進臥室,與旁邊的大白墻相互映襯著,輕松無壓,又不乏溫馨。
灰色大床擺放在中央,柔軟親膚的水洗床品是屋主媽媽特意買來的,特別舒適,床頭背景做了原木色豎條紋裝飾,自然又立體,營造出靜謐安詳的休憩氛圍。
早上第一縷陽光從床頭的小窗子灑入,輕輕叫醒睡夢中的人兒,美好的一天由此開始。
把小陽臺納入進來,布置成泡澡區,白瓷浴缸是@婭從家居館選淘回來的,性價比不錯,得空的時候在這里泡上一會,放松減壓。
書 房
拆除小臥室的隔墻,規劃成書房使用,從客廳看過去,整個公區開放一體,互動性很好。
陽臺納入臥室后,將原來的出入口封起來,與書房飄窗以弧線相連,自然過渡在一起,并定制了墻柜,增強儲物能力。
整體色調保持統一,木桌和靠背椅質感十足,半開放式書架兼具收納和展示的功能,方便實用。
飄窗上方的弧線造型與客廳相呼應,采光和通風性很好,白色紗簾輕盈靈動,頗有幾分“仙氣飄飄”的味道~
小飄窗臺面也可作為一個休閑的好去處,放上抱枕,在這里品茶讀書,歲月靜好。
衛 生 間
衛生間干區移到門外,結合客廳隔斷進行設計,大理石盥洗臺面高級典雅,白瓷面盆嵌在上面,美麗又大方,不規則美容鏡很是個性時髦,把這小小的一隅之地,裝飾得精美靈動。
