80后男人玩起浪漫,陽臺書房+LDK純凈悠閑,寵妻天花板!
來源:愛空間科技(北京)有限公司 日期:2022-10-26 17:03:43
- 詳細介紹
自古就有“得民心者得天下”,大家包含小家,在“小家”的理解里亦然,“得女主心者得天下”。這是西安屋主@鮑先生所遵循的一套家庭關系心得~寵妻+女兒奴的他,跟妻子結婚十年有余,夫妻甜蜜,家庭和睦,羨煞旁人。曾遠赴加拿大留學與妻子結識后有了女兒,如今帶著家人一起回國定居。對此,他將妻女的意見匯總與我們進行了溝通:
①干凈簡約的配色,不用濃墨重彩的渲染。
②適當的收納體系,減少家務整理的時間。
③獨立的書房,可以辦公閱讀。
④雙衛設計,主臥形成獨立套間。
基于這些想法,本次方案我們以現代簡約風格為基調,輔以簡約干凈的軟裝,為三口之家打造了完美而理想的居所。想知道是如何實現的嗎?往下看看,就會找到答案!
戶型:三室兩廳
風格:現代簡約
常住人口:3人
面積:120㎡
裝修花費:20萬
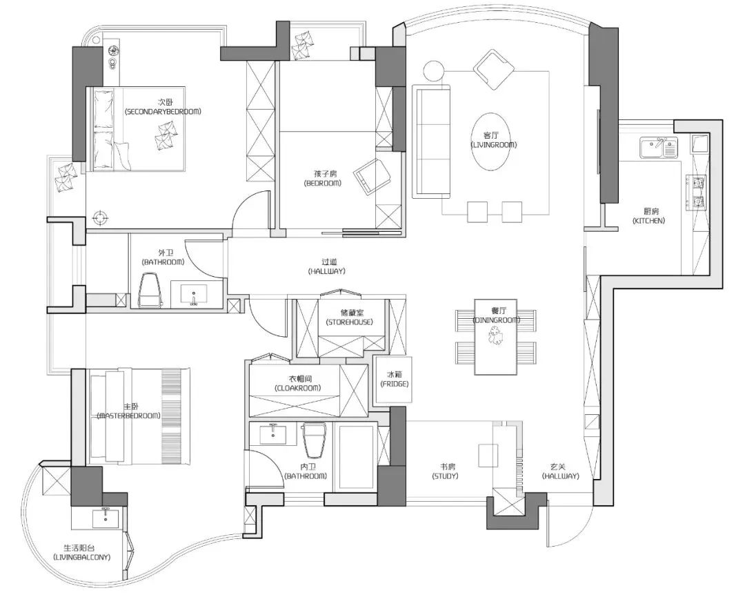
平面布置圖
原本的戶型中,客餐廳進深較長,主臥和餐廳之間有一個狹長的空間,過道門比較多,主臥面積小等等問題都影響著居住體驗,針對此類問題,我們進行了以下幾個方面的調整:
①進行了重新分區,將南小陽臺納入餐廳作為開放式書房,滿足屋主的辦公、閱讀需求。
②重新規劃了儲藏室、更衣間、內衛及冰箱收納區,進一步提升了空間使用率。
③儲藏室、衛生間及主臥都做了暗門設計,來弱化過道門過多的感覺。
④將陽臺一分為二并入主臥,擴充室內面積,形成完善的獨立套間。
玄關
步入家中,靠墻安裝懸空換鞋凳,高度適中,契合人體工學,底部空出來便于擺放一些常穿常換的鞋子;旁邊鏤空的地方是特意作為綠植生長區來布置,寓意“破土而出”,讓沉寂的環境充滿了綠意和生機。
客廳
此次家裝的風格定位是現代簡約路線,整體的色調使用了白色和木色為主,局部增加綠色打破乏味,提升活力與清新氣息。
無主燈的造型拉升視覺層高,使整個區域輕松敞亮,夜晚照明主要依托于中央內嵌的射燈,不得不說燈光的作用很顯著,直接將居家氛圍營造得愜意溫暖。
陽臺納入客廳后,面積和采光都得到了最大化的改善,弧形落地窗+輕薄的白色紗簾,微風徐徐吹來時美如文藝片。
地面通鋪淺色木地板和巨幅絨毯,使客廳落落大方,整潔有度,居家時完全可以在這邊赤腳待上一整天,無比輕松解壓。
客廳的軟裝家具盡量簡化,與周圍色彩保持統一風格,純潔簡約,融合深色的布藝沙發和白色水磨石茶幾,深淺結合,樸素優雅。
從客廳可以將餐廳全貌一覽無余,一體式的布局使兩個區域共享動線和面積,增強屋主一家人的實時互動,就連清潔衛生時掃地機器人也可以輕松穿過,十分便利。
餐廳
餐廳色彩簡雅大方,風格時尚耐看,沒有花哨多余的裝飾,以木質方桌和線條流暢的黑色餐椅搭配而成,營造出溫馨典雅的用餐氛圍。
定制無把手通頂餐邊柜,不僅解決了餐廳和其他公區的儲物問題,預留的冰箱凹槽還使廚房得到了進一步釋放,分擔了內部的儲物壓力。
奶油白雙層鐵藝燈,和綠植相互映襯,形成了浪漫多姿的情調,一家人在此用餐,味蕾和視覺可以得到雙重的享受。
廚房
廚房安裝移動玻璃門,弱化內部矮梁的存在,還可以和門口的開放柜共用,解決書籍落塵問題。
廚房內部進行烹飪期間可以把門關上,完全杜絕跑煙問題,不會污染到餐廳空氣。
廚房面積有限,采用白色文化磚和木色櫥柜進行提亮,營造出整潔敞亮的烹飪環境,下廚因此變得輕盈舒適許多。
主臥
將原本的陽臺一分為二,使室內面積得到擴充,采光得到了優化。核心區域中,以青藍色+淺灰色墻漆作為搭配,緩解視覺疲勞,撫慰焦躁,更好入眠。
床頭一側打通窗戶,可以通風散味,還能夠作為室內的飄窗來使用,看看書發發呆享受午后時光。
床尾安裝移動門衣柜,和衛生間隔斷合二為一,關起來的時候平整流暢,奧妙無窮。
主衛
主衛洗手臺潔白無瑕,圓形化妝鏡+白色水磨石吊燈,精巧玲瓏,極具觀賞性,讓每一天晨起洗漱都變得賞心悅目。
采用玻璃隔斷進行干濕分離,淋浴房內部開鑿壁龕作為置物臺,暖白光灑下來,滿眼清透。
次臥
次臥作為父母的備用房,配色偏向樸素自然,以體現沉穩和歲月痕跡的木質簡樸風格為基調,給人溫潤安心的體驗。
飄窗點綴綠植,放上一盞玻璃燈飾,閑時坐在這里看看書,靜靜心,沉浸在典雅意境中,可以釋放許多負能量。
兒童房
女兒的房間定制了榻榻米床+衣柜+書桌一體式家具,這是以房間最大利用率為主導的處理思路。榻榻米床既有充足的儲物性能,也有著最小的面積占用率,滿足小房間的起居要求。
白綠相間的柜體,既清新雅致,又美觀簡利,點綴黃色的小壁燈為房間內加入了一抹可愛的童真元素。
陽臺/書房
餐廳邊的陽臺合理利用起來,做了開放式書房,雖然是個不起眼的角落,不過采光充足,陽光可以通過格柵照射進來配上木質家具,溫暖明亮,閱讀學習或者臨時居家辦公都有舒適體驗。
公衛
仿水磨石瓷磚和木色柜體相映成趣,白色基調的衛浴區成為清新居所的絕佳搭檔。
