跨過3座城租過5次房,30歲安家70㎡超美小戶型
來源:愛空間科技(北京)有限公司 日期:2022-10-31 15:52:13
- 詳細介紹
『說在前面』
在擁有這套房子以前一直沒有真正的歸屬感,帶著我的愛犬@皮卡換過三座城市,租過五次公寓。想安定下來的愿望隨著每一次的搬家變得越來越強烈。去年剛過30歲生日沒多久,父母就商量著與其把錢存在銀行,不如買套房更保值,最后決定在廣州這座城市安頓下來,2月份年后裝修6月就和皮卡搬進了新房子,開窗通風,味道也散的差不多了。
分享一些心得,這次終于可以隨心所欲,按照自己的想法來布置我的小家了,裝修前簡單羅列了一些需求:
①有個足夠裝下我所有鞋子的玄關柜。
②原木元素的家居氛圍,溫暖清爽。
③中西廚都要有,西廚和餐廳在一個空間。
④純白色的中廚,敞亮且利于清潔。
⑤可以躺在臥室追劇和休閑。
⑥保留次臥,增設書桌座椅。
最終,設計師將我的需求都放到了方案中,全屋以原木材質塑造出現代簡約風,玄關柜、中西廚、臥室帶電視和飄窗,次臥除了作為客房還是一個多功能書房......到現在,兩個月的時間過去了,房子變成了家。每件家具與裝飾,都是精心挑選的。
戶型:兩室兩廳
風格:現代簡約
常住人口:1人
面積:70㎡
裝修花費:24萬
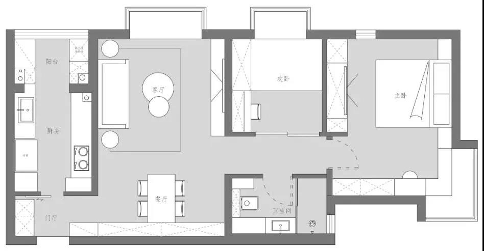
平面布置圖
戶型屬于比較方正的,所以并不需要對格局進行大的改造。但入戶門正對著廚房門、主臥儲物空間少、次臥和衛生間之間的過道狹長并且光線較弱。針對以上問題,設計師給出的調整思路如下:
①廚房安裝長虹玻璃推拉門,解決入戶光線效果差的問題。
②主臥墻體向次臥推進,加出一組衣柜,提升儲物性能。
③次臥門擴寬,安裝玻璃推拉門,解決過道視覺上狹長及采光問題。
⑤把收納體系規劃排在首位,強化客餐廳儲物,讓整個房子的儲物率達到16.5%。玄關
進門左側定制了一組無把手反彈門的通頂柜,內部設有掛衣、鞋柜、小工具收納等區域。
挑空的臺面和地面懸空的位置裝有感應燈,回到家自動點亮,再也不用黑漆漆到處摸索了。
客廳
喜歡簡單溫馨的居家風格,平滑的頂部沒有安裝大型的吊燈,純白色從天花蔓延到四周的墻面,地面鋪貼原木地板,窗簾呼應木質元素的色調,方方面面都一目了然,滿滿的安全感。
電視背景墻定制了壁柜,解決了客廳缺乏儲物區的問題,中間嵌入電視機,四周包圍大小不同的抽屜、柜格和展示臺,可以隱藏電源線、路由器、零碎物件等等。
展示臺目前還閑置,放上兩個裝飾瓶變得很有情調,后期打算添置一些書籍放在這邊,應該會很文藝。
一個動物造型的坐凳,讓家里變得更可愛有趣了些,誰不是童心未泯的大朋友呢~
沙發背景墻留白,為長期居住留足了可發揮余地,不管以后換新款沙發或者裝飾畫,都能夠做到兼容。
高低有序的黑白茶幾精致利落,占地面積較少,足以承載我一個人的日常生活。閑下來的時候,沏杯檸檬水,帶上兩本雜志,可以在這邊坐上一整天。
沙發邊放一盆綠葉盆栽,增添了靈動生機,還能吸收家里的有害氣體,美觀又健康。
白色的環境中帶有一抹綠,仿佛置身清新的田園,閉眼就能領會到春天的氣息。
餐廳
客廳吊頂延伸到餐廳,10公分平頂拉伸了視覺層高,極為通透敞亮。
L型的線條燈從天花一直拉伸到墻面,在視覺上形成了客餐廳兩個區域的劃分,照明范圍均勻溫和,待在其中覺得渾身充滿暖意。
餐邊柜采用地柜及吊柜的形式,儲物力爆棚,中間區域做了軌道插座,擺放咖啡機、早餐機等電器,使用較方便。
1.4米的餐桌功能較多,除了日常用餐,聚會,這里也是我常用的“辦公區”,自己的家,想怎么用都可以。
皮卡特別喜歡看動畫片,下班回家我在廚房忙活,這家伙就會自己盯著電腦屏幕看個不停,也不知道是否真能看懂。
餐桌燈使用復古又可愛的Flowerpot VP7 ,造型出奇可愛,算是餐廳的點睛之筆。
尤其喜歡藤編元素的椅子,散發著中古氣息,讓每一餐都變得極具儀式性。
廚房
廚房門洞寬度有限,同時還受到兩側管道影響不能加寬,所以將原始的平開門改為無門套極窄邊框金屬平移門,使門洞寬度達到最大。
廚房內部和陽臺打通使用,光線敞亮又透氣,整體的白色大理石墻地磚提亮了內部環境,搭配整潔的櫥柜和烹飪設備,一切都井然有序。
主臥
主臥延用了白色、木色的簡約基調,搭配一張灰色軟包大床,營造出安靜有格調的睡臥環境。
打造飄窗,加寬一部分作為隱形的儲物區,將原始的大理石臺面換成板材,與書桌和床頭柜相連,形成了一個最佳觀景讀書角。
床頭背景一側安裝木格柵和線條燈,夜晚打開的時候十分耐看。
臥室光源都是溫和的暖色調,比較人性化,深夜起居不刺眼。
飄窗的柜體一直連接著梳妝桌和衣柜,形成一個無死角的整體,打掃起來省心多了。
主臥加出一組電視柜,實現了窩在床上舒心追劇的夢想,尤其冬天的周末,特別安逸。
次臥
次臥是一個多功能的房間,可以根據生活場景的不同靈活變換,目前對我來說主要用作書房。
玻璃推拉門可以讓室外的自然光毫無保留地散射到過道,緩解了之前光線昏暗的問題。
衛生間的長虹玻璃元素和次臥呼應,細節上做得十分到位。
衛生間
衛生間安裝壁掛馬桶,下面增加地漏,清洗時,所有水都會流得干干凈凈。墻地一體的仿石瓷磚,耐磨易清潔,減輕了家務的工作量。
