上海辣媽の生活智慧,入戶區域變餐廳,空間利用率max
來源:愛空間科技(北京)有限公司 日期:2022-11-02 10:08:26
- 詳細介紹
說在前面
去年疫情期間,生活節奏慢下來了,巧克力爸媽買下了這套面積105㎡的小三室,有個較為寬敞的入戶區域,內室則比較緊湊,面對這樣的戶型,巧克力一家很有想法,和設計師一起總結出來了幾個關鍵訴求:
1、想要開放式的廚房,在上海租房這幾年,一直覺得擁擠的廚房很不便利
2、重收納,巧克力媽媽太愛買買買了,會屯一些生活用品
3、公區盡可能的寬敞,要明亮、溫馨、舒服
4、喜歡品酒,收藏各類酒
5、桑拿房必須安排上,給自己能夠放空的機會
我們首先對布局進行了調整,將功能區拆改重組,然后以白+原木色為主基調,獲得一個清新簡約,雅而不俗的家居環境,同時加入一些復古時尚的元素,讓這個家舒適溫馨,又富有調性。
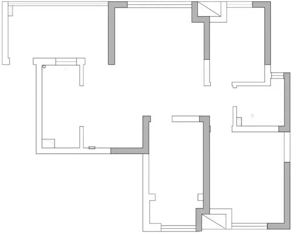
原始戶型圖
戶型分析:
1、入戶玄關區域顯得有些浪費,利用率不高;
2、臥室都很小,居住感不太好;
3、廚房狹窄,難以滿足使用需求。
平面布局圖
設計策略:
1、把餐廳設置在入戶玄關區域中,同時安排鞋子收納區;
2、打開廚房,中廚和西廚結合,冰箱暗藏,一整排的酒柜再也抑制不住屋主買酒的喜好。
3、以島臺為中心,是屋主會友喝酒最好的地方。
4、原衛生間納入主臥,規劃成衣帽間
5、衛生間位置稍加改動,并且放下了屋主心心念念的桑拿房。
房屋信息:
面積:105㎡
戶型:兩室兩廳一衛
常住人口:3人
風格:復古風
裝修成本:21萬
客 廳
客廳清新質樸,無主燈均勻分布的光源帶來幾分祥和之氣,薄紗窗簾輕盈柔和,陽光從窗臺映射到客廳的每一個角落,非常舒適。
棕色塊狀沙發沉穩大氣,與輕質靈活的釣魚臺燈和圓面茶幾,巧妙尋得一個輕重和諧的平衡點,營造出輕松靜謐的家居氛圍。
背景墻配掛一幅抽象壁畫,頗有藝術氣息。
過道側墻采用胡桃木飾板進行裝點,線條造型簡潔利落,將兒童房門體隱匿在其中,美觀又實用。
餐 廳
原本的玄關區域改造成餐廳,靠窗設置卡座和鞋柜,搭配原木色餐桌椅,可以在享受美食的時候眺望窗外的風景,可謂別出心裁。
雅致的搭配讓餐廳環境更加安逸,柔和的暖光燈打在桌面上,家的歸屬感強烈涌上心頭,讓人無法拒絕。
在安靜的午后,巧克力媽媽喜歡在這里享受一杯美味的咖啡,或看本好書,別提多愜意了。
平日待在家里,打開暖光燈,空間氛圍十足又非常溫馨。
廚 房
廚房與餐廳位于同一水平面,拆除了原有的部分墻體,做成半開放式設計。
將客餐廳打開后,采光好了不止一點點,互動性也更好。
開放式的廚房結合整排的西廚設計,以島臺為中心洄游動線,最左邊的柜門暗藏著冰箱。
靠墻定制了L型櫥柜,滿足各種餐廚用具的收納需求,并打了整面酒柜,上面都是屋主的藏品,隨時都能在這里享受醇醇的酒香。
在設計酒柜的時候我們也是和屋主溝通討論了許久,希望家里每一處都是為她量身定制的。
主 臥
主臥延續客廳的整體風格,一張大床讓人盡情享受舒適安心的睡眠,背景墻采用海綿材料進行裝飾,不僅舒緩漂亮,隔音效果也很好。
靠窗的床頭柜放著@巧克力媽媽的私人物品,抽屜里暗藏玄機,做了分格設置,連口紅都能按照色號進行歸類。
衣帽間
主臥改造后也擁有了一個小型步入式衣帽間,選用玻璃柜門、內嵌燈帶的形式。
兒 童 房
兒童房面積不大,因此書桌,床,以及床尾的衣柜都是一體化定制的,留出更多活動區可以讓巧克力隨心玩耍。
衛 生 間
衛生間三式分離,提高使用效率的同時,還能擁有良好的私密性,干區的木質盥洗柜沉穩典雅,配上輕奢華貴的美容鏡,讓這小小的一隅之地,也變得很有格調。
我們將干區做了色調延伸,柜子和墻面的顏色都融入進來,打造了屋主心心念念的桑拿房,并利用玻璃推拉門與淋浴區隔開,保證功能區干爽潔凈。
利用新砌的墻體將壁掛式馬桶水箱隱藏起來,新潮美觀,頂部單側暗藏燈帶進行補光,多了幾分生活小情調。
