【我的老房改造】雙動線“兒童游樂園”の成長式寶藏宅
來源:愛空間科技(北京)有限公司 日期:2022-11-04 15:21:29
- 詳細介紹
委托人戴先生夫婦有套116㎡的房子,房齡有25年了,前身是校區的員工宿舍,屋內隔墻非常多。雖然過時、陳舊的裝修看著確實不太順眼,但也還湊合。隨著可愛的萌萌上了小學,整個家庭的“重心”開始轉移,戴先生夫婦才意識到,孩子的成長需要適宜的環境,10年未變的家需要一次大改造了!他們希望能打造一個充滿個性的、生活便捷的,能陪伴孩子一起成長的家。
于是,整個居室圍繞親子相處和便捷動線進行改造和裝飾,僅拆一面墻、多開一扇門,便實現玄關-臥室-客餐廚廳-陽臺-衛生間相互聯通的超自由化大平層空間。
房屋信息:
面積:116㎡
戶型:兩室兩廳兩衛
常住人口:3人
風格:北歐
裝修成本:19萬
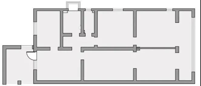
戶型圖
戶型分析:
1.東西向延伸的長型戶型,進深較大,好在有三面采光,室內不會顯得太昏暗。
2.屋內的承重柱和墻體過多,能拆除的部分少之又少,想要提升居住的舒適性,就必須打破傳統居住格局,規劃新的生活動線。
改造分析:
1-盡可能地遵循房屋內的原始結構框架,保留前半部分因磚混結構而不能改動的門洞、梁結構等。
2-在玄關規劃收納區、兒童游樂區,并增加高低臺設計,提升入戶的儀式感。
3-入戶建立雙動線,方便家人互動及互相照顧。
4-重新梳理及優化房屋布局,改善原衛生間的局促感。
玄關
入戶玄關的收納柜,用簡單趣味性的兒化造型及色彩,滿足小朋友的好奇心。上半部分封閉的柜體內部有很大的收納空間,生活中的物品有了安放之處,視覺營造“零雜物”之感。
客廳
客廳在整個戶型的最內側,由原來的兩個房間去掉隔墻改造而來,對不能拆除的承重梁柱進行涂飾改造,淺灰色與純白色相交,加上射燈的光影效果,打造出輕靈夢幻之感。在客廳可以看到主臥和餐廚廳,動線極為方便。
沙發的長寬與客廳十分契合,后面依托梁柱的凸出面打造嵌入式收納柜,左側柜子設計移門,右側是儲物柜格,封閉收納和開放收納五五均分。
整屋最令人舒適的還有木質元素的運用,窗框、cassina的藤編茶幾、木地板的搭配,使得整體灰白色調的客廳之中生出一股暖人心扉的基調。住在這里,會不由自主地愛上生活。
造型不羈的綠植插瓶點綴出空間的生命力,呈現出不喧不囂的大美。茶幾的高度與沙發基本齊平,坐在地毯上閱讀也十分方便,自在,自由。
灰色磨砂氣球吊燈非常搶眼,像是一個向上升的氫氣球,滿足孩子天真審美的同時讓淺灰色的頂梁變得獨特,也寓意“步步高升”。
陽臺臺面向內擴展,做成木制的置物臺,孩子可以在這里做手工,還可以養一些喜光的小盆栽。
陽臺頂部保留原始的晾衣架,添置buyaya兒童吊環,增加一處孩子玩耍鍛煉的地方。
壁掛式電視機的后面,設計了隱藏式插座,整個電視背景墻不會產生插線纏繞的凌亂感。設計師用地臺代替電視柜,放上盆栽裝飾,也減少了清潔死角。
電視背景墻保留原戶型中的小窗戶,算是室內裝飾的一部分,也增加空氣的流通。
餐廚廳
餐廳和廚房通過地面抬升和客廳劃分出界限,高低門洞組合打破視覺單調性,整體隔而不斷。
值得一提的是,廚房操作臺半包圍餐廳,這樣就形成了一個家庭成員之間很好交流互動的空間,讓情感和溫度都可以在這里流動起來。
餐椅的選擇從材質和色彩上起到承接過渡作用,藤編搭配不銹鋼底座,有溫度又不失質感。
不銹鋼吊燈造型很獨特,既是照明又是氛圍光源,安靜純美的氣息為餐廳增添幾分意趣。
主臥
主臥靠玄關處開了一道門,屋主回家能以最短的動線抵達臥室,同時方便隨時照料在兒童房里的女兒。
主臥的另一道門連接著客廳,獨特的雙動線設計,也讓家形成了一個環繞式空間。
主臥的兩扇門都采用智能移門設計,節省面積的同時,也讓原本就梁柱稍多的空間不會顯得太過擁擠雜亂,顏值和安全系數也非常高。
臥室與客廳之間的三扇移門移開之后,光線可以最大化地進入室內。
素凈淡雅的色調柔和蔓延全室,烘托溫馨愜意的睡眠情境。
兒童房
兒童房保留原有的落地小窗洞,設計師用木質邊框和磨砂玻璃進行改造,并在臺面上增加裝飾品,兼顧采光和美觀性。
柔和粉相映著原木色,配上童真可愛的裝飾掛畫,為室內帶來了一份甜美氣息。簡潔有趣,才是小孩房該有的氣質。
衛生間
三分離式的衛生間設計,馬桶、淋浴區和洗手臺各自獨立,可以緩解高峰期的使用壓力。整個衛生間幾乎為純白,在一方不大的空間里,同樣做到至純至簡。
淋浴間外規劃了清洗區,疊放洗衣機和烘干機,洗完澡后可以直接洗衣烘干,非常方便。
