「退休生活」送爸媽90㎡日式暖宅,N處細節讓人看紅眼眶
來源:愛空間科技(北京)有限公司 日期:2022-11-07 08:46:23
- 詳細介紹
這套90㎡的兩居室,是@小辛送給父親60歲大壽的一份特殊的生日禮物。經歷30多天魔鬼式裝修工程,終于在中秋把房子交到父親手上,那一刻壓力盡散,迎來了烏云背后的幸福線。
如何把父母的生活習慣、審美、興趣融合一起,是一場大考驗。精裝房的各種bug要解,收納空間要擴容,全屋定制設計、功能、環保一個都不能少,最終全屋風格采用淡雅節制、深邃禪意的日式風格。
在格局上大膽創新,注重對房屋光線的管理,大量運用自然界的原木材質和多種實木壁畫和擺件,使空間立體感極強,形成"小,精,巧"的模式,讓二老退休后的生活也能新意滿滿,精致有品,閑適寫意,悠然自得。
房屋信息:
面積:90㎡
戶型:兩室兩廳一衛
常住人口:2人
風格:日式風
裝修成本:24萬
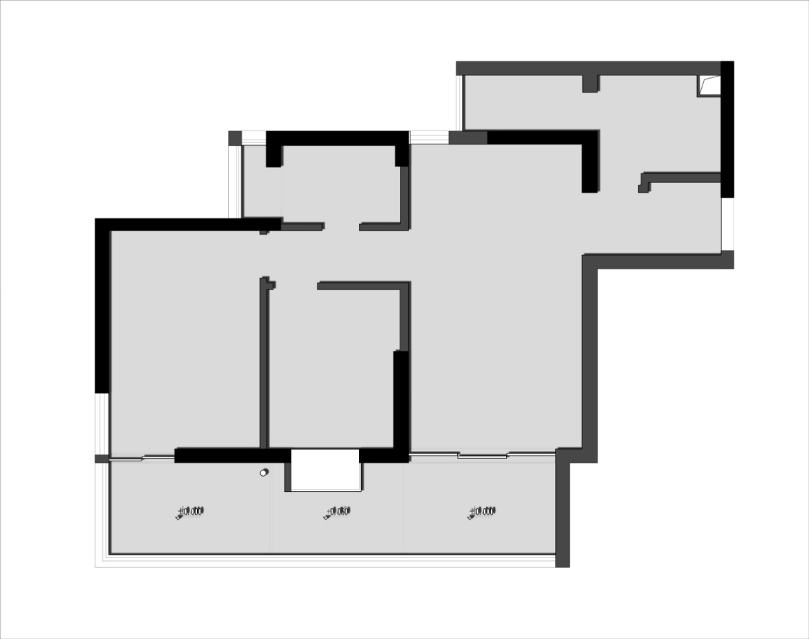
原始戶型圖
原始戶型最突出的缺點就是空間之間沒有做好過渡,玄關與廚房、客廳與陽臺普通的承重墻和隔門讓空間顯得更加擁擠,而應該做好的功能性規劃區分卻沒有很好地隔開,比如陽臺、衛生間干濕分離等。
設計平面圖
1、打通玄關與廚房、客廳與次臥的隔墻,玄關與客餐廳之間增加隔門;
2、將陽臺劃分為生活陽臺和休閑陽臺,在休閑陽臺處設置了假山和水池;
3、將所有門設置為日式推拉柵格門,更顯輕盈;
4、拆掉客廳與休閑陽臺之間的門等,讓整個房屋更加靈活靈現,過渡更加自然隨意。
玄關
從小辛口中得知二老喜歡簡單的寫意和率性的自在,玄關整體強調簡潔和清新,利用無主燈光線給入戶者帶來眼前一亮的視覺效果。
客廳
小戶型也能營造不凡的儀式感,在玄關與客廳之間增加推拉柵格門,讓空間更多變化,豐富家居層次。在這里總能讓人靜靜地思考,禪意無窮。
灰色皮質沙發靠背是傾斜的,符合人體工程學,坐感舒適特別適合老年人。
與次臥墻面打通,開了一扇窗,空氣更加流通,同時在小鳥擺件、小植物壁框的加入下,帶來幾分靈動的氣息。
木質肌理是日式的代表作,自然清雅有韻味。木質茶幾造型雖簡,其容納功能可是很大,老人家的“寶貝”茶葉都是存放于此。
生活就是如此簡單,在自由自在的空間里,只要心是暖的,一杯白開水、幾個喜愛的水果,都能如此靜謐美好。
餐廳
寬敞明亮的公共區域,順應自然光色調,映襯木質鋪敘,環繞柔和韻味。開放式客餐廳與廚房的百葉窗的設計,使家人之間會有更多交流與互動。
原木的地板太有親和力,溫潤的質感和自然的紋理,讓家里萌萌的貓咪也“愛不釋手”。
既然是日式風格,怎么能少得了這樣一幅頗有意境的掛畫呢?專為拾掇小美好而設計的新中式禪意置物架寓意圓滿,富有詩意,向欣賞者傳達一種濃郁的東方式精神境界的追求。
廚房
廚房與玄關用吧臺隔開,白色的地磚和墻磚顯得整潔透亮,木質的櫥柜、淳樸的木色,自然清新。在這樣的環境下,即使是做飯,也是滿滿的享受。
旁邊的吧臺設計增添了自然感和恬靜感。
走廊
沿走廊而入,右手邊是衛生間,左手邊是主臥和次臥,用的是原戶型的功能分區,
動線設計符合兩位老人的日常習慣。
可拆卸的櫻桃木實木隔板,合理利用墻面小空間,置物功能get,擺上兩瓶綠植是很不錯的選擇。
主臥
主臥色彩配置淡雅、簡潔。床頭、吊燈、掛畫、床頭柜用清晰的線條,使居室的布置有較強的幾何立體感。卸下繁重,簡單的幾樣家具讓身心都感覺到舒適。
連貓咪也學會了在這份柔軟恬靜中宣示主權。
床頭背景墻裝飾很簡單,立體掛畫與餐廳、走廊相互呼應,是小辛特意選的,代表對父母退休后生活的美好祝福,伐木丁丁,鳥鳴嚶嚶;出自幽谷,遷于喬木。
次臥
次臥是榻榻米設計,在這里,感覺不到任何的壓抑,所有柜子都和空間融為一體,顯得和諧自然。
房間內飄窗和兩扇百葉窗的設計,可謂“神來之筆”。
休閑陽臺
休閑陽臺用原木柵格結構打破了大片玻璃帶來的窒息感,盡頭一側是靜穆、深邃、幽遠的假山水景,幾塊山石前應后臺,綠苔在青石上,灰墻上婆娑著樹影,這亦是自然亦是人工的境界,是提煉的自然。
景觀中以一方庭院山水,而容千山萬水景象。兩位老人足不出戶便可欣賞到小橋流水的自然景觀,可見小辛的一片孝心。
生活陽臺
生活陽臺為洗衣、晾掛區域,中間放置了一個原木高柜,可以擺放一些不常用的衣物。小榻頗供二老休憩之用,帶有濃烈的和式風格,暖暖的倚在上面,想想就很滿足。
衛生間
衛生間加了玻璃推拉門作干濕分離,灰色混凝土風格的地磚,防滑效果非常好,是小辛專門為父母挑選的。馬桶上方的電熱毛巾架也方便在秋冬天氣來晾干毛巾。
