23萬巧裝120㎡學區房,發現它的每1㎡都用得太絕!
來源:愛空間科技(北京)有限公司 日期:2022-11-09 08:53:26
- 詳細介紹
說在前面
兩個寶貝都到了適學年齡,需要各自的生活學習空間,年初我們便買下這套鄭州的120㎡三居室,打算裝修一番后入住。
房子基礎戶型不錯,雖然不是前后通透的板式結構,但采光通風都還行,無需大拆大改。對于家裝這件事,我和老公一致認為環保舒適最重要,于是設計師根據我們的喜好需求,以極簡日式為主軸,采用溫暖的木色搭配奶茶色進行裝飾,簡潔不造作,溫暖又舒適,選材上也是極盡用心,一切以健康安全為原則,最終的裝修效果非常棒。
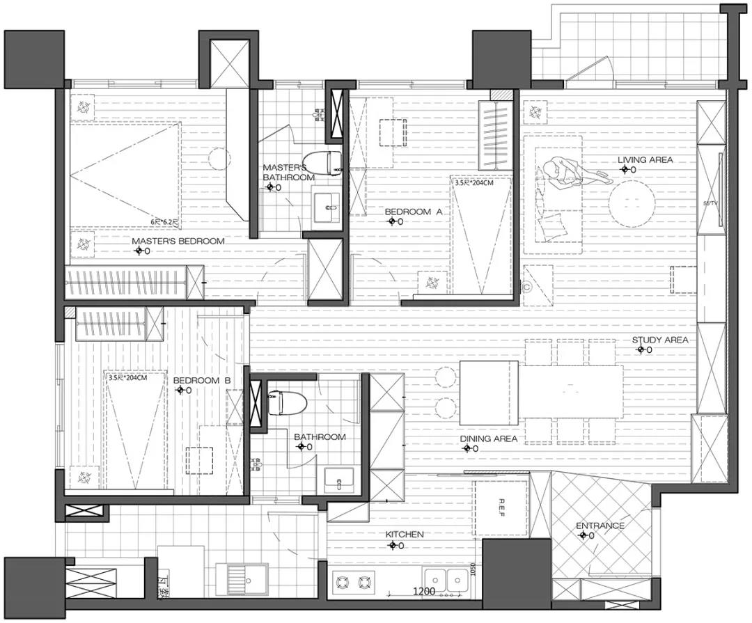
平面布局圖
戶型分析:房子戶型方正,沒有異型結構,動靜分區明顯,兒童房分居主臥兩側,但整體通透性欠佳,于是在家裝時,做了輕微改動,以提高居住舒適度:
①將內室的多余墻體拆除,實現客餐廳一體化開放設計,從入戶玄關便可一眼看到陽臺,空間顯得更加開闊敞亮;
②在廚房門口打造了儲物柜和中島臺,完美銜接餐廚區,提高了空間利用率,也讓整體家居更加平衡和諧。
房屋信息:
面積:120㎡
戶型:三室兩廳兩衛
常住人口:4人,兒子8歲,女兒6歲
風格:日式
裝修成本:23萬
玄 關
玄關的設計非常簡潔,選用灰色地磚進行鋪設,很好地與內室界定開來,進門正對的墻柜采用美式百葉門,舒緩視覺的同時還能保持通風,充足的儲物空間,讓鞋襪收納變得簡單輕松,美觀又實用。
客 廳
客廳采用純白+木色+奶茶色為主基調,烘托出溫馨舒適的空間氛圍,大落地窗作為內室的主要采光點,引入大片自然光,淡雅的空間,配設一張莫蘭迪綠沙發,瞬間多了幾分清新與活力。
相比追劇看電視,我和老公更喜歡帶孩子做一些親子活動,干脆取消了傳統的電視機,做了新穎獨特的設計,結合書桌和柜體,形成一個錯落有致的立面,奶茶色的墻面襯托出木色的自然,有顏值也有格調。
餐 廚 區
整個公共空間都沒有做隔斷,保持開闊通透的狀態。
餐廳位于玄關和客廳的過渡區域,四面開放,選用了淺色原木餐桌,簡約大氣。
配掛兩盞暖光吊燈,清透的空間多了幾分溫情。
餐廳旁做了中島臺和儲物柜設計,可以作為廚房的延伸,讓餐廚區空間變得更加緊密,生活動線也更加合理便捷。
餐桌與中島臺完美銜接,充滿了儀式感,簡單擺上喜歡的插花,便是最好的安排。
主 臥
主臥采用木色與奶茶色結合,溫馨又舒適,考慮到空間有限,舍棄了笨重的床頭柜,以輕巧的邊幾代替使用,增加了空間靈活性,床側的衣柜采用無門把手設計,平整流暢。
床尾電視墻設計了吊空小木臺,方便擺放裝飾品和隨身物件,靠窗位置利用內凹的結構,推展出一個半開放式儲物柜,提升了主臥的收納能力。
主 衛
主衛做了干濕分離,整體采用白+黑+原木為主色調,清爽潔凈,淋浴區墻面鋪滿豎紋小白磚,顯得靈動自然。
男 孩 房
男孩房的布設清新而富有活力,墻面以幾何線條進行裝飾,分別填充上奶茶色和嫩綠色的乳膠漆,打破了空間的單調沉悶,個性十足。
床尾靠墻定制了衣柜,與窗子錯開位置,不影響采光,對面則打造一體儲物架和書桌,擺放一些兒子喜歡的玩具和讀物,生活學習兩不誤。
女 孩 房
女孩房的設計規劃與男孩房一致,以幾何線條框畫出活潑的氣質,空間布置非常靈活,便于后期改動,在奶茶色的基礎上加入淡紫和粉紅色,甜而不膩,又帶有幾分俏皮可愛的感覺,女兒可喜歡了。
次 衛
次衛采用吊空的木質盥洗柜組合,對于空間儲物起了很大作用,旁邊角落處安置一輛置物架小推車,可靈活進行補充收納,馬桶上方還做了層板設計,方便擺放紙巾等用品,方便又貼心。
