看小姐姐的86㎡,逆天收納圈粉無數,獨居真的會上癮!
來源:愛空間科技(北京)有限公司 日期:2022-11-21 08:55:25
- 詳細介紹
說在前面
Zitty是個學商科的姑娘,愛旅游愛香薰與盲盒娃娃,也愛下廚偶爾為自己和親友做一頓大餐。基于對生活的細心觀察,和多年的攝影經驗,對于室內裝修有著不俗的審美,特別享受怡然自得的獨居生活。
擁有了自己的家后,她做了很多家裝方面的功課,將色彩、空間、預算、需求都考慮得當。在設計師的幫助下幾乎把所有喜歡的東西都給安排上了,把這個僅有86㎡的小家打造得精妙絕倫。
溫暖的燈光映在原木家具上,赤著腳肆意穿梭于每一個自由空間,設計巧妙的玄關、解壓放松的客廳、多功能陽臺、浪漫的餐廳還有溫柔的臥室…太治愈了。
房屋信息:
面積:86㎡
戶型:兩室一廳
常住人口:1人
風格:簡約風
裝修成本:15萬
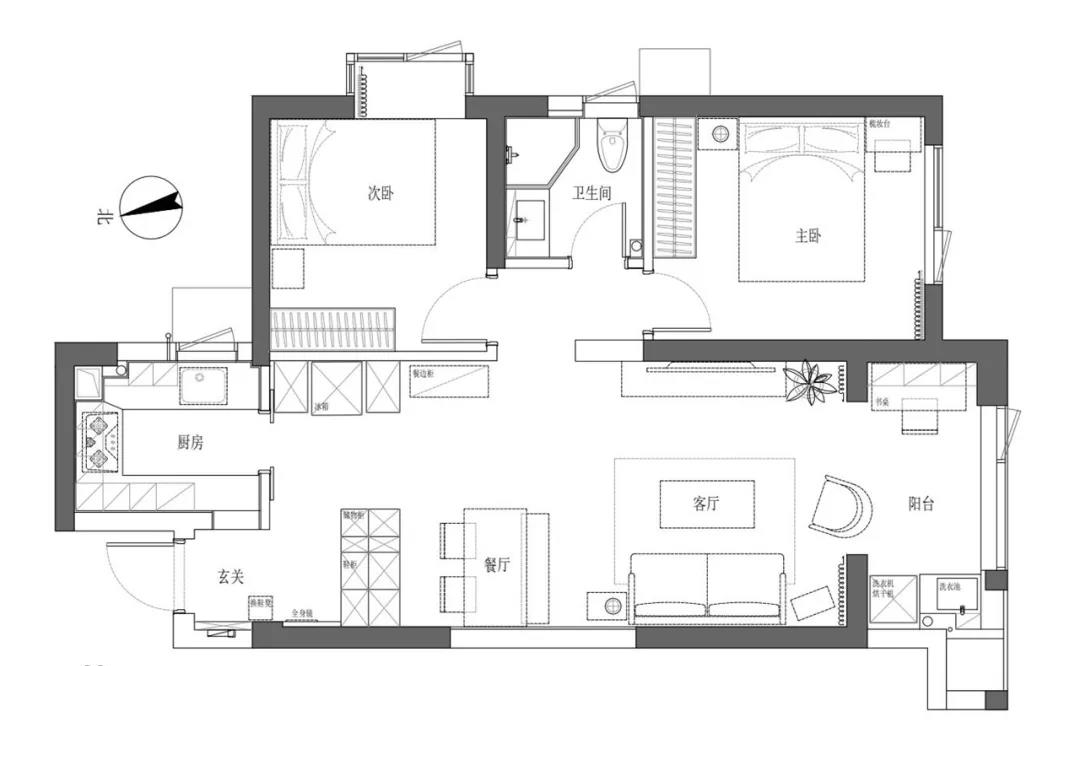
戶型圖
戶型方正,采光優越,視野通透流暢。在硬裝上,設計師主要著手于優化格局,更好地匹配屋主的使用動線:
① 以柜體為隔斷,在公區增加了兩組柜子劃分出玄關、餐廳與客廳3個區域。
② 將衛生間的門右移,同時延長客廳的電視背景墻,消除了衛生間正對著客餐廳的不適感。
③ 陽臺兩端分別設為洗衣區和辦公區,大大提高空間利用率。
玄關
入戶以一組玄關柜為主體,采用鏤空形式,隔而不斷,既避免了開門見廳的尷尬,又能引入客廳的光線與空氣。
收納方面采用80%封閉+20%開放的方式,中部開放格處放著高頻使用的幾款香水,還有經常佩戴的首飾,出門前精心打扮一番,開啟美美的一天。
與此同時,由于擺放了香水,一進屋便迎面撲來一陣淡淡的香氛,特別怡人。
進門的左側是廚房與玄關之間的鏤空窗口,也為玄關引入了廚房的光線。
進門右側是穿衣鏡、換鞋凳和掛包的地方,搭配得很有淑女范兒。
側面是一個儲物柜,主要用于收納包包與出門經常用的物品。設計在在進出房屋的動線上,出門的時候順手拿上需要的物品,到玄關處佩戴首飾、噴上香水,再到全身鏡前整理一下儀容,特別節省出門時間。
客廳
客廳寬敞舒適,一進客廳除了滿屋的陽光,還有明麗透亮的百葉窗和大量的原木家居,其間插入的翠綠色帶來一室清新。
頂部是分散的筒裝射燈,天黑后依舊能讓光照亮每個角落。
沙發旁配置了可調節位置的壁燈,下方是用于零食收納的邊幾,實用與美貌程度都是100分。
窩在沙發里看電視、坐在地上閱讀、葛優癱或是和朋友來場桌游,空間氛圍是安靜或熱鬧,都由自己來掌握。
陽臺
客廳與陽臺之間沒有設門,必要時以窗簾阻隔,這樣設計使空間更加自由開闊。
靠沙發一側的陽臺盡頭設計為衣物清洗、烘干區,儼然一個小小的洗衣房。且利用墻體遮擋,從客廳一側看這個小空間被“藏”了起來,增加空間使用功能的同時絲毫不顯得雜亂。
陽臺另一端是書房,具備書籍收納、日常辦公的功能。
開放層架上放著Zitty自己喜愛的盲盒娃娃,上方的透明書柜既防塵又便于拿取書籍。
餐廳
以櫻桃木餐桌椅和柜子為主體的客餐廳,在暖色光線下顯得精致又浪漫。
利用玄關柜的反面柜體為餐廳增加收納。
右側放置靠墻的成品柜,靈活增補餐區收納,同時也是Zitty展示杯具與香氛收藏的居心地,完美呈現出一人居的儀式感。
Zitty喜歡邀請好友來家里聚會,長方形餐桌可以靈活容納6-8人,精致有品的餐廳加上色香味俱全的佳肴,輕松擁有美好的派對時光。
廚房
廚房使用透明推拉門增加小空間的通透感,也保留了門的最大打開尺寸。
冰箱嵌入在廚房外的收納柜內,左右兩側都是收納空間。
廚房灶臺與水槽隔開之后,提升了廚房的安全性。同時臺面設置了高低差,炒菜時不費胳膊,洗碗時不用過度彎腰,也防止了水流外濺。
很愛下廚的Zitty十分注重廚房的實用功能,也特別注重廚具的“顏值”,將精致的生活態度貫穿始終。
主臥
主臥是被煙紫色包圍的溫馨世界,墻壁、房門與柜體色彩統一,空間達到了視覺放大的效果。
僅設置了睡眠、梳妝與收納功能,在滿足日常生活所需的同時盡可能地精簡空間。
靠窗一側的是床頭柜+梳妝臺的設計,完美契合空間尺寸,小巧而節制。
邊照鏡子邊護膚,僅靠一個小小的收納格就搞定,收納格的門板背面就是鏡子,省去了單獨購買鏡子的麻煩。
次臥
次臥作為親友小住的區域,裝飾得偏閑逸和放松。同樣利用通頂柜達到最大儲物量,閑置時用于放置家中的大件棉被等物品。
精致的琉璃壁燈與藤編邊幾契合家中的整體氛圍。
床頭放兩本書供客人睡前小讀,銅制開關復古味十足。
衛生間
衛生間淋浴區域使用條形磚加強視覺延伸感,使用鏡柜可以減少洗手臺面東西的堆放,隨時保持整潔美觀。
