這套108㎡老房從“人人嫌棄”到爭相模仿,到底改了哪?
來源:愛空間科技(北京)有限公司 日期:2022-11-21 08:55:25
- 詳細介紹
『前言』
這套108㎡的精裝房是胡先生和妻子小徐三年前買的,當時由于預算的問題沒有做太多的改動,簡單地置辦了些家具就匆匆入住了。今年因胡先生工作上有所成就,打算挪出一部分資金用來翻新房子。對于重新改造,夫妻倆有很多規劃,首先風格上選用現代簡約,功能上要有更多收納。之前的衛生間洗完澡全是霧氣,這次翻新要干濕分離。原先的房間設計動靜分區不合理,在休息時容易受到打擾……
兩人的工作都很忙,所以裝修事宜全權交給設計師,從開工到結束大概經歷了3個月的時間,落地過程基本按照設計方案一比一還原。客廳、臥室分別按照屋主的生活方式搭配軟裝,最終達到了預期的效果。
房屋信息:
面積:108㎡
戶型:三室兩廳
常住人口:2人
風格:現代簡約
裝修成本:18萬
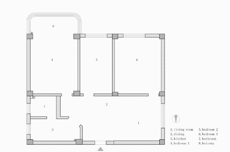
戶型圖
原戶型格局比較方正,三室兩廳,同時存在問題:
1.原有格局臥室與公共空間動線比較散亂,沒有餐廳區域。
2.衛生間要從廚房進出,沒有干濕分區。
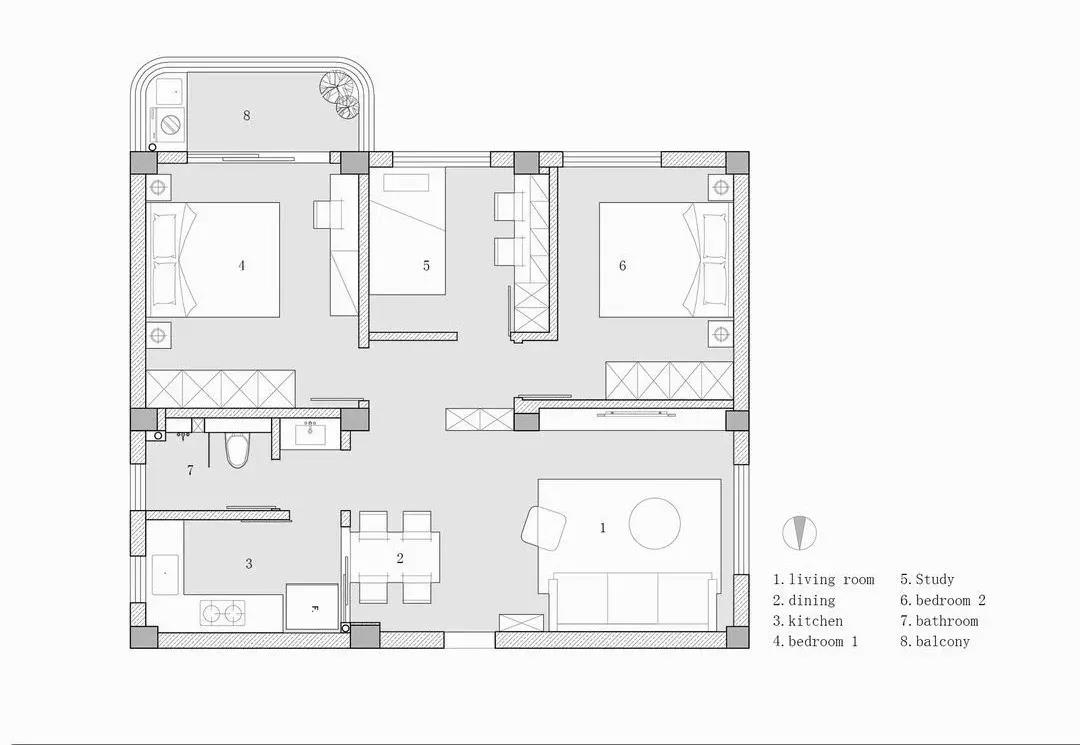
改造后的戶型,主要做了調整以下幾個地方:
1.在入戶左手邊設置餐廳,打通廚房相隔的墻體做玻璃窗,讓空間更通透。
2.在客廳定制內嵌通頂儲物柜,滿足收納需求。
3.敲掉三個臥室部分墻體設計走廊,使客廳和臥室動靜分區明顯。
4.封閉原臥室門將浴室柜外移,做三分離,洗漱、淋浴、如廁分開,早高峰一家人可以高效使用。
客廳
電視背景墻定制內嵌收納柜,既可以收納物件,還可以在隔板層放置一些擺件,提升空間的格調。圓形高低錯落茶幾,恰到好處的色彩點綴,帶來靈動與活力,白紗簾使陽光滲入房間,營造安靜舒適的生活環境。
吊頂采用簡潔的平頂與無主燈設計,射燈保證充足的照明效果。沒有復雜的造型,視覺上看著更加的干凈寬敞,灰色布藝沙發是現在很多人會選擇的款式,舒適且方便清潔。
餐廳連通客廳,不僅擴大使用空間,也營造了更通透敞亮的居家環境。
餐廳
玻璃窗的設計,打破廚房的封閉沉悶,合適的高度還可以傳菜,餐桌選用的是與整體相呼應的黑色,造型簡約又不失線條的美感。
巖板餐桌,搭配原木色和黑色餐椅,吊燈輕盈而別致,黑色畫框豐富白墻。小場景的營造,細微處見質感。
廚房
L型的櫥柜布局,完美契合廚房空間。灰白的色調簡潔、素雅。
一扇推拉門將油煙隔開,廚房與餐廳隔墻相望,飯菜伸手即得。
主臥
臥室以灰白色調為主,灰色背景墻與床頭,窗簾相呼應,整體和諧統一。燈,是臥室的精髓,暖暖的燈光營造靜謐舒緩的氛圍,讓人瞬間睡意來襲。
通頂的大衣柜承包了臥室的收納,嵌入式把手線條利落,兼顧日常使用和美觀。床頭放置凈化器,保證室內空氣質量,營造一個健康舒適的生活環境。
床尾定制梳妝臺,簡約而適用,合理利用每處空間。
次臥
次臥整體布置簡約明凈,整體家居和床品用淺色提亮空間,簡單舒適。
次臥同樣定制通頂衣柜,不留衛生死角。床頭設置插座,方便手機充電。對稱的壁燈散發的光暈營造溫馨氛圍。
書房
書房布置極盡簡約,除了必須的家具單品,沒有一絲多余,書桌的造型簡單大方,結合感應燈帶,營造出典雅精致的氛圍。
墻上定制書柜,材質環保、健康。獨立的書房更能讓人靜下心來,感受生活的美好。
公衛
淋浴區做壁龕,可以放置洗漱用品,淋浴門采用無邊框高清透明玻璃,隔絕水汽,增大空間的通透感。
