55㎡將8大功能空間安排得明明白白,小戶型也能住出儀式感!
來源:蘇州愛空間整裝公司 日期:2022-12-05 16:38:36
- 詳細介紹
屋主是一對90后夫妻,帶著一個3歲兒子。在繁華的大城市能擁有完全屬于自己的家是一件幸福而自由的事,他們希望自己的小家是一個溫和親切、舒適又慢生活的地方。設計師最大化挖掘空間可利用性,選擇開放式生活布局,增加空間利用率,玄關、客廳、餐廳、廚房、主臥、次臥、洗衣房、衛生間都很俱全!也許他們的家不一定會很酷,但一定會有它獨特的氣息。
一起來看看吧!
設計技巧:
1、每一寸角落都是寶,唯有充分利用好空間才不會顯得雜亂無章。利用多功能的家具能創造好的居住體驗,比如電視柜、櫥柜。
2、與紅紅綠綠的跳眼顏色相比,小戶型風格必須既要明亮,又不能占用太多面積,更需要淺色調營造溫馨、安靜的生活氛圍。
3、無主軌道射燈+無主嵌入式能層次分明,屋內不會有陰影,也可以根據不同的場景需求控制燈光。
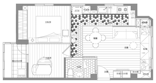
戶型圖
設計師充分利用每一個角落,以中部隔墻為界,整體分為兩大塊區域,左側是兩個臥室,還辟出了洗衣房;右側是一體式的玄關+客廳+廚房+餐廳,客廳飄窗還安排了臥榻,衛生間位于空間中部,功能區太齊全!
玄關
小格局玄關功能也不少,入戶的儀式感同樣能有!
入門右手邊是一個大大的白色吊柜,一柜多用,內含充足的儲藏空間。兼具玄關柜、客廳置物柜、電視柜、客廳置物擺臺功能。靠門一側盡管面積不大,卻也為主人提供方便實用的臨時衣物、鞋子收納位置。
入門左手邊是一個懸掛式簡易置物架,白色鐵藝+原木臺板的搭配,簡約中透露出清新和精致。三層的擺臺可以容納一些小物件,如裝飾品、女主人的香水等~
客廳
整體淺灰+白+淺咖木色視覺上清新雅致,整潔大方,綠植盆栽的植入帶來鮮活的生機,營造出一個文藝自然的小空間造型。
客廳空間以通透的格局設計,設計師將一面墻設計為飄窗,使得戶型的采光通風得到滿足。茶幾和靠椅的選擇以實用為主,小細腿不占空間,越發讓這個小戶型不會顯得壓抑。
做了吊頂設計,視覺層次上不顯單調和隨意,有種大格局家裝的莊重感。也因為做了吊頂,加上主燈會顯得擁擠,選用無主射燈讓空間更潔凈。
實木布藝沙發是沉穩與大氣簡約的結合,電視柜下方的藤編收納筐整齊排放,增加自然氣息還能收納零碎的小物品,客廳內一切陳設秩序井然又不失溫度。
“竟想不到如此小戶型還能享受飄窗”女主人很驚喜地說。
榻榻米地臺上鋪一層軟墊,就是可以讓人盡情享受休閑時光的軟塌啦~
輕柔的光線之下,或閑靠或端坐,品讀一本喜愛的書籍,好不輕松愜意~就連寵物貓咪也特別喜歡在軟榻之上懶懶臥著,享受陽光的溫暖,興致來時逗弄它一番,在這個小小空間里也能感受生活中滿滿的樂趣。
餐廳
一日三餐,是生活的必須,一個餐廳,是家的情感集結。
餐廳設置在靠近臥室的地方,很溫馨,原木的餐桌椅節省空間,用圓柱形的餐桌腿和簡約吊燈的設計營造儀式感。
對于餐具用心,也是對生活負責。
陳設雖簡,但生活方式不能隨意,越發要通過精致的餐具細細品味這一天當中最幸福的時光。
客餐廳的地板用一層原木板鋪設,其余區域是六邊形地磚,于小細節之中做出了功能區域劃分,可見設計心思的靈巧和細膩。
廚房
廚房L形設計,一米高的白色邊框水紋玻璃若有若無地隔出廚房空間。
定制的櫥柜可是發揮了巨大的作用。一體式的櫥柜既要與吊頂融合協調,又要在保持空間規整并且占地面積不大的基礎上實現最大化收納,設計師充分利用轉角、頂部空間,集封閉櫥柜和開放操作臺為一體,除了滿足日常烹飪操作和置物外,還將微波爐、冰箱也內嵌收納,實現了多種物品的有效整合。
除了收納功能強大,櫥柜右側的角落還可作為飲品制作儲存區,擺放酒、茶葉、咖啡豆及杯具、制作工具等,設置在轉角,平常烹飪操作時也不會磕碰到。
烹飪操作臺也預留了足夠的空間,洗滌區和灶臺有效分隔,互不干擾。六邊形灰色花紋拼接地磚耐臟實用,便于打理。
就連女主人喜愛的綠植,也能很好地融入到廚房空間,從此烹飪有了一個美美的心情~
櫥柜腳設置了“隱形”插孔,用吸塵器清理廚房時,也更加便啦。
臥室
作為休息空間,主臥設計非常清爽,原木的家具特別質樸溫暖,低飽和度的配色令整個空間風韻更佳。
可愛的貓咪也愛上了這寧靜安然的睡眠空間~
兒童房

兒童房之外就是陽臺洗衣房,洗滌和晾曬都在這里,生活功能規劃有條不紊。
衛生間
衛生間面積不大但功能齊全,做了干濕分離。
洗漱臺很簡易,洗手盆和面鏡不可少,省去了浴室柜空間,利用凸出來的墻壁臺面擺放牙刷、牙膏等日常用品,剛剛好。
用玻璃平移門隔出淋浴區,充分保證了令人舒適的沐浴空間。
最后的話
每一種生活方式都值得被尊重,每一個家都應當被用心對待。通過規劃布置讓家成為滿足主人生活、承載主人精神意志的安居之所,才是設計的真正意義所在~
